コンテンツへスキップ ナビゲーションに移動
芳賀セメント工業株式会社
  • ホームHome
  • 製品Products
    • 道路用製品(歩車道系)
    • 道路用製品(側溝・蓋系)
    • 土留用製品
    • 暗渠用製品
    • 農業土木用製品
    • 一般仕様桝・公共汚水桝
    • 基礎ブロック
    • パーキングブロック
    • 境界杭
    • その他製品
    • プレキャスト住宅基礎
    • 取扱製品
    • 山形県リサイクル認定製品
    • JIS製品
  • カタログCatalog
  • 会社案内Company
  • アクセスAccess
  • 採用情報Recruit
  • お問い合わせContact
  1. ホーム
  2. 製品
  3. 境界杭
  4. 根巻ブロック

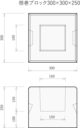
根巻ブロック

山形県リサイクル認定製品

関連製品

  • 用地境界杭および
    国土交通省基礎ブロック
  • コンクリート埋設標
カテゴリー
リサイクル製品

お気軽にお問い合わせください。023-655-5321受付時間 8:00-17:00 [ 第2・4土・日・祝日除く ]

お問い合わせ

製品

  • 道路用製品(歩車道系)
    • 片面R歩車道境界ブロック
      • 片面R歩車道境界ブロック
        基本
      • 片面R歩車道境界ブロック
        切り下げ三角部
        (通常タイプ)
      • 片面R歩車道境界ブロック
        切り下げ用10cm
        (通常タイプー平もの)
      • 片面R歩車道境界ブロック
        コーナー
      • 片面R歩車道境界ブロック
        コーナー デリネーター
      • 片面R歩車道境界ブロック
        基本 デリネーター
      • 片面R歩車道境界ブロック
        水抜き
      • 片面R歩車道境界ブロック
        切り下げ三角部(SRタイプ)
      • 片面R歩車道境界ブロック
        切り下げ用10cm
        (SRタイプー平もの)
      • 片面R歩車道境界ブロック
        B-SRー2段切り下げ
      • 片面R歩車道境界ブロック
        90°コーナー
      • 片面R歩車道境界ブロック
        曲線(内R、外R)
    • 両面R歩車道境界ブロック
      • 両面R歩車道境界ブロック
        基本
      • 両面R歩車道境界ブロック
        切り下げ(三角部)
      • 両面R歩車道境界ブロック
        切り下げ(平もの10cm)
      • 両面R歩車道境界ブロック
        コーナー
      • 両面R歩車道境界ブロック
        コーナー デリネーター
      • 両面R歩車道境界ブロック
        基本 デリネーター
      • 両面R歩車道境界ブロック
        水抜き
    • 地先境界ブロック
    • 歩道用コンクリート
      境界ブロック
    • エプロン一体型ブロック
    • L形側溝
      • コンクリートおよび
        鉄筋コンクリートL形
      • 鉄筋コンクリートL形切り下げ
      • 鉄筋コンクリートL形5cm
      • 鉄筋コンクリートL形縁塊
      • 鉄筋コンクリートL形縁塊桝
    • 路面排水桝(グレーチング付)
    • プレキャスト集水桝
    • 植樹桝ブロック
    • 集水桝用縁塊
  • 道路用製品(側溝・蓋系)
    • 上ぶた式U形側溝 本体
    • 上ぶた式U形側溝 ふた
    • 落ちふた式U形側溝 本体
    • 落ちふた式U形側溝 ふた
    • ロードドレイン 本体
    • ロードドレイン ふた
    • 大型ドレイン 本体
    • 大型ドレイン 蓋板
    • 鉄筋コンクリート側溝蓋
      (現場打用)
    • 勾配自在形ロードドレイン
      (MKドレイン)
    • HUグレード
      (ストッパーピン付)T-25
    • YKUグレード
      (ストッパーピン付)T-25
    • YK側溝
    • YK側溝 蓋
    • シントー側溝SS(本体)
    • シントー側溝受台SSCB
  • 土留用製品
    • L形ブロック
    • YLウォール
    • YLウォール (石目模様)
    • ウルトラGPウォール
  • 暗渠用製品
    • ボックスカルバート
    • プレキャスト基礎板
      (ボックスカルバート対応)
  • 農業土木用製品
    • 水路
    • 水路 蓋
    • 水路 受台
    • 排水フリューム
    • 排水用水尻桝
    • ベンチボックス
    • 水口溝水路(300用)T型
    • ベンチフリューム
      1種
    • ベンチフリューム
      2種
    • ベンチフリューム用
      ふた(Tー6)
  • 一般仕様桝・公共汚水桝
    • 鉄筋コンクリート溜桝
      「落ちぶた式」
    • 鉄筋コンクリート溜桝「ふた」
    • 鉄筋コンクリート改良桝
    • 公共汚水桝
    • ため桝(RC1・RC2・RC3)
    • インバート桝(SC1・SC2・SC3)
  • 基礎ブロック
    • フェンス基礎ブロック
    • ガードパイプ基礎ブロック
      ・外灯基礎ブロック
    • ピンコロ
    • はかま石
    • 防護柵用根巻ブロック
  • パーキングブロック
  • 境界杭
    • 用地境界杭および
      国土交通省基礎ブロック
    • 根巻ブロック
    • コンクリート埋設標
  • その他製品
    • 鉄筋コンクリート井戸側
    • 鉄筋コンクリート井戸蓋板
    • 鉄筋コンクリート井戸側集水管
    • プレキャスト基礎板
      (マンホール対応)
    • ポール台
      (旗竿・物干等用基礎ブロック)
    • 骨箱(カロート)
    • 防油堤
  • プレキャスト住宅基礎
    • アイランドベース
  • 取扱製品
    • 各種グレーチング
      • 嵩上げ式グレーチング
      • 現場打用側溝蓋グレーチング
        (T-25)
      • 上げ蓋式U形グレーチング
      • 水路用グレーチング
      • 集水桝用グレーチング
        (四方落し込み)
      • 溜桝グレーチング
      • HU・YKUグレード勾配用グレーチング
      • 溜桝グレーチング 落込式
      • 改良桝グレーチング
        (四面カット)
    • ヒューム管B形管
      (ソケット継手管)
    • 空洞ブロック
    • コンクリート平板

営業日カレンダー

2026年 5月
日月火水木金土
26
27
28
29
30
1
2
3
4
5
6
7
8
9
10
11
12
13
14
15
16
17
18
19
20
21
22
23
24
25
26
27
28
29
30
31
1
2
3
4
5
6

定休日

PM休

営業日

  • ホーム
  • 製品
  • カタログ
  • 会社案内
  • アクセス
  • 採用情報
  • お問い合わせ
  • 納入実績
  • 技術情報
  • CADデータダウンロード
  • 個人情報保護方針

日本産業規格適合性認証工場

山形県リサイクル製品認定工場

クイックベース評定取得工場

アイランドベース製造販売

〒994-0057
天童市石鳥居二丁目1番67号
TEL 023-655-5321(代)
FAX 023-655-3050
営業時間 8:00~17:00

Copyright © 芳賀セメント工業株式会社 All Rights Reserved.

MENU
  • ホーム
  • 製品
    • 道路用製品(歩車道系)
    • 道路用製品(側溝・蓋系)
    • 土留用製品
    • 暗渠用製品
    • 農業土木用製品
    • 一般仕様桝・公共汚水桝
    • 基礎ブロック
    • パーキングブロック
    • 境界杭
    • その他製品
    • プレキャスト住宅基礎
    • 取扱製品
    • 山形県リサイクル認定製品
    • JIS製品
  • カタログ
  • 会社案内
  • アクセス
  • 採用情報
  • お問い合わせ
PAGE TOP